서울 파라스파라 호텔 소개
본문 바로가기
카테고리 없음

서울 파라스파라 호텔 소개

by 서진맘 2024. 6. 5.
반응형

| 5성급 서울 파라스파라 소개

1박2일 휴가로 연인과 가족과 함께 사람이 너무 많지 않고 재미있게 즐길 수 있는 호텔인 파라스파라를 소개해드리겠습니다. 파라스파라는 자연과 사람이 유기적인 조화를 이루는 곳을 목표로 강남에서 40분 거리에 위치하며 광활한 북한산에 둘러싸여 바치 북한산 품속에서 있는 듯한 차원이 다른 휴식을 주고 있습니다. 천해의 자연환경인 북한산 국립공원 주변으로 그대로 즐길 수 있습니다. 강남에서 40분 거리이며 서울 어디서나 1시간 이내로 서울내에서 즐길 수 있는 접근성이 높습니다. 북한산의 대자연을 느낄 수 있는 깔끔하고 세련된 아름다운 객실과 수영장, 사우나, 피트니스, 루프탑 자쿠지 등 다양한 부대시설을 경험할 수 있습니다.  

 

위치: 서울 강북구 삼앙로 689
문의: 02-3408-5000
이용시간: 오후 15:00(체크인) ~ 오전11:00(체크아웃)
웰빙·액티비티: 수영장, 어린이 수영장, 스파.웰니스센터, 자쿠지, 피트니스센터, 키즈클럽, 사우나, 정원, 하이킹 

 

 

https://naver.me/G5rMF91v

 

파라스파라 서울 : 네이버

방문자리뷰 2,555 · 블로그리뷰 3,963

m.place.naver.com

| 숙소안내

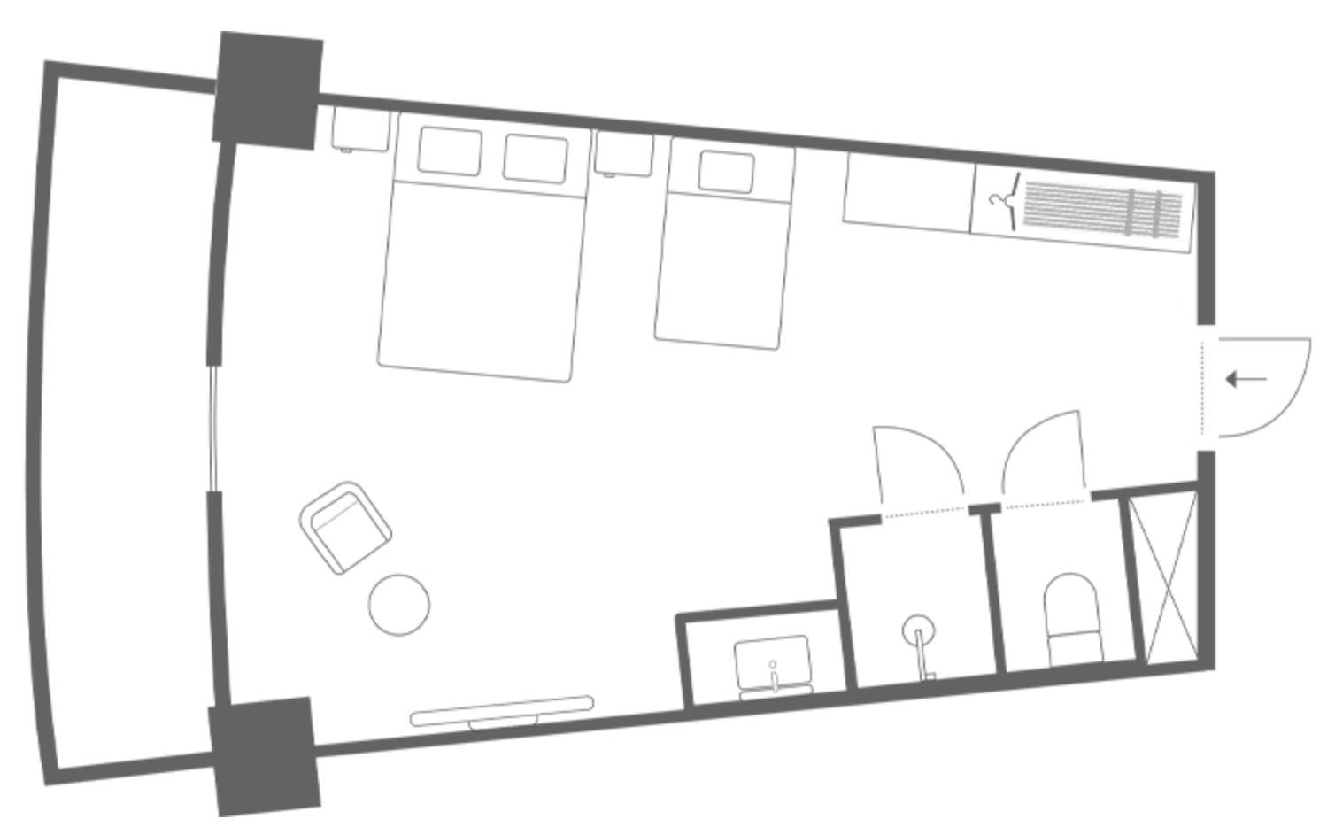
1. 거실과 침실 결합형

CABIN JUNIOR KIDS_캐빈주니어

킹베드와 어린이 침대로 구성된침실로 엄마와 아이가 함께 안심하고 편안한 휴식을 누릴 수 있습니다. 어린이 의자와 테이블이 마련되어있어 재미있는 놀이를 즐길 수 있으며 가족들의 기분 좋은 하루를 마무리할 수 있게 해줍니다.

객실정보
위치: 114동
객실상세: 침실1, 욕실1, 발코니1
객실크기: 36.4㎡
침대타입: 킹베드+어린이침대
투숙인원: 기준 인원 2명 / 최대인원 3명 (추가인원 요금 별도)
무료주차: 1대 (초과차량 사전등록시 1박 20,000원 / 사전에 등록되지않은 차량 10분당 1,000원 추가요금 발생)

 

 

CABIN_ 캐빈

포근한 자연을 담아낸 캐빈은 넓고 여유롭게 실내공간을 구성하였으며 같은 건물 내에서 수영장과 루프탑자쿠지, 피트니스를 이용하여 새로운 활력을 충전하실 수 있습니다.

객실정보
위치: 114동
객실상세: 침실1, 욕실1, 발코니1
객실크기: 42.09㎡
침대타입: 킹베드
투숙인원: 기준 인원 2명 / 최대인원 3명 (추가인원 요금 별도)
무료주차: 1대 (초과차량 사전등록시 1박 20,000원 / 사전에 등록되지않은 차량 10분당 1,000원 추가요금 발생)

 

2. 거실과 침실 분리형

TIMBER SUITE_팀버스위트

최대 4명까지 머물수 있는 여유로운 면적의 스위트 객실로 침실과 거실이 분리되어 있으며 소파와 작은 테이블은 물론 다이닝 테이블까지 마련되어있는 곳입니다. 더블베드로 구성된 침실에서는 에너지 재충전의 시간을 누릴 수 있는 공간입니다.

객실정보
위치: 102동, 103동
객실상세: 거실1, 침실1, 욕실1, 발코니1
객실크기: 85.95㎡
침대타입: 더블베드 2
투숙인원: 기준 인원 2명 / 최대인원 4명 (추가인원 요금 별도)
무료주차: 1대 (초과차량 사전등록시 1박 20,000원 / 사전에 등록되지않은 차량 10분당 1,000원 추가요금 발생)

 

 

TIMBER JUNIOR_팀버 주니어

넓은 욕실과 알파룸을 갖춘 스튜디오 타입의 객실로, 더블사이즈와 함께 엑스트라 베드가 있어서 아이와 함께 가족이 잘 수있는 공간입니다. 자연 친화적인 편안한 무드의 인테리어와 함께 소나무 숲을 떠올리게 하는파라스파라의 시그니처 향이 나는 격조있는 공간입니다.

객실정보
위치: 102동, 103동
객실상세: 거실1, 알파룸 침실1, 욕실1
객실크기: 66.11㎡
침대타입: 킹베드1, 싱글사이즈 엑스트라 베드1
투숙인원: 기준 인원 2명 / 최대인원 3명 (추가인원 요금 별도)
무료주차: 1대 (초과차량 사전등록시 1박 20,000원 / 사전에 등록되지않은 차량 10분당 1,000원 추가요금 발생)

 

 

TIMBER_팀버

침실과 거실이 분리된 객실인 팀버는 아이를 동반한 가족 여행객이 머물기에 최적인 공간입니다. 여유로운 욕실과 테라스는 여행의 쾌적함을 더해주며 거실에는 담소를 나눌수 있는 공간과 프라이빗한 휴식을 머무를 수 있는 침실이 분리되어 있습니다.

객실정보
위치: 102동, 103동
객실상세: 거실1, 침실1, 욕실1
객실크기: 66.11㎡
침대타입: 킹베드1
투숙인원: 기준 인원 2명 / 최대인원 3명 (추가인원 요금 별도)
무료주차: 1대 (초과차량 사전등록시 1박 20,000원 / 사전에 등록되지않은 차량 10분당 1,000원 추가요금 발생)

 

 

TIMBER SUITE KIDS_팀버스위트 키즈

아이가 있는 가족의 휴가를 위한 숙소로 다양한 놀이 시설이 갖춰진 스위트키즈는 밖에 나가지않아도 객실 내에서 자유롭게 신나는 놀이를 안심하고 사용이 가능합니다. 2층 벙커에서 나만의 놀이 시간을 갖고, 어린이 테이블에서 드로잉을 마음껏할 수 있으며 어린이 소파에서는 엄마와 함께 책읽기를 하면서 다양한 시간을 채울수 있습니다.

객실정보
위치: 102동, 103동
객실상세: 거실1, 침실1, 욕실1, 발코니1
객실크기: 85.95㎡
침대타입: 더블베드 2
투숙인원: 기준 인원 2명 / 최대인원 4명 (추가인원 요금 별도)
무료주차: 1대 (초과차량 사전등록시 1박 20,000원 / 사전에 등록되지않은 차량 10분당 1,000원 추가요금 발생)

 

 

 

PREMIER TIMBER SUITE_프리미엄 팀버 스위트 

최대 여유로운 규모의 프라이빗한 편백탕을 갖추어진 곳으로 서울어느곳에서도 경험할 수 없는 시간을 주는 공간입니다. 편백향이 가득한 욕조에서 편안하게 휴식할 수 있는 쉼이 있습니다. 

객실정보
위치: 102동, 103동
객실상세: 거실1, 침실1, 욕실1, 발코니1
객실크기: 85.95㎡
침대타입: 더블베드 2
투숙인원: 기준 인원 2명 / 최대인원 4명 (추가인원 요금 별도)
무료주차: 1대 (초과차량 사전등록시 1박 20,000원 / 사전에 등록되지않은 차량 10분당 1,000원 추가요금 발생)

 

 

PINE SUITE_파인 스위트 

두개의 침실과 거실 공가능로 구성되어서 여유로운 휴식을 취할 수 있는 최상의 스위트 객실로 소파와 테이블과 다이닝 테이블이 놓여진 넓은 거실은 물론 가족과 함께 담소를 나누기에 적합한 별도의 공간이 마련되어 다채로운 시간을 보낼 수 있습니다.

객실정보
위치: 101동, 102동
객실상세: 거실1, 침실2, 욕실2, 발코니1
객실크기: 155.37㎡
침대타입: 킹베드 + 더블베드 2
투숙인원: 기준 인원 4명 / 최대인원 6명 (추가인원 요금 별도)
무료주차: 1대 (초과차량 사전등록시 1박 20,000원 / 사전에 등록되지않은 차량 10분당 1,000원 추가요금 발생)

 

카트 이용

숙소에서 거리가 있는 경우 카트를 프론트데스크에 요청하면 무료로 이동시켜줍니다. 저는 숙소가 110동이라서 사우나까지 거리가 있어 카트를 타고 이동했는데요. 편하게 이동할 수 있었어요. 어른들도 이동하기 불편하실 때 언제든지 이동할 때 사용할 수 있습니다.

 

| 시설 소개_수영장

북한산이 둘러싸인 인피티니풀장

길이 20m, 폭 4.5m의 온수풀과 2개의 자쿠지가 있는 옥상에 있는 인피니티 풀장에 들어선 순간 탁 트인 뷰에 탄성이 나오는 곳입니다. 물에서 장시간 놀면 추워질 수 있는데 한증막같은 시설이 있어 가족, 연인과 도란도란 담소도 나누고 따뜻하게 몸을 말릴 수 있습니다. 북한산의 웅장한 아름다움을 감상하며 맘껏 수영할 수 있는 기분이 힐링되는 풀장이었습니다.

 

위치: 109동 7층
운영기간: 09:00~21:00 (13:00~14:00 수질정비) / 09:00~19:00 전연령입장가능 / 19:00~21:00 만14세미만 출입금지
시설: 비치타월, 선베드, 데이베드, 카바나, 풀하우스(유료)
이용문의: 02-3408-5020

잔디 정원 가운데 있는 가든풀

멋지게 관리가 되어진 정원에 위치하는 가든풀은 기리다 30m, 수심이 0.45m의 유아풀, 수심이 1.1m의 성인풀과 함께 1개의 자쿠지와 5개의 카바나를 갖춘 야외 수영장입니다. 오직 프라나 오너스 회원만 위해 운영되는 공간으로 자연속에서 온전한 휴식을 취할 수 있는 수영장입니다. 아이들이 옮겨다니면서 다양한 수심에서 수영하고 놀 수있는 수영장입니다. 그리고 따뜻한 온수풀로 운영되고 있어 아이들이 춥지않게 수영할 수 있으며 자쿠지에서 몸을 녹일 수있어 좋습니다. 

위치: 107동 1층
운영기간: [5~6월] 월~목 09:00~19:00 / 금~일 09:00~21:00 /  7~9월 매일 09:00~21:00 / 10월 매일 09:00~19:00
시설: 야외수영장 (비치타월, 선베드, 데이베드_유료), 자쿠지 1개소 36~40도
이용문의: 02-3408-5020          

 

 

언제나 즐거운 라운드풀

라운드풀은 수심 1.2m 메일풀장과 0.7m 유아풀장과 2개의 자쿠지로 구성된 전연령이 즐길 수 있는 수영장으로 라운드 형태로 되어 있습니다. 피톤치드 가득한 라운드풀에서 온가족이 함께 즐거운 시간을 보낼 수 있습니다.

위치: 114동 1층
운영기간: [5~6월] 월~목 09:00~19:00 / 금~일 09:00~21:00 /  [7~9월] 매일 09:00~21:00 / [10월] 매일 09:00~19:00
시설: 야외수영장 (비치타월, 선베드, 데이베드_유료)
이용문의: 02-3408-5020          

 

취향대로 즐기는 내부 인도어풀

길이 20m, 깊이 1.2m 2개 레인을 갖춘 성인풀과 함께 아이들을 위한 유아풀이 있어 본인의 취향대로 수영을 즐길 수 있습니다. 수중테라피를 받을 수있는 바데풀과 자쿠지까지 각춘 인도어풀에 차별화된 휴식을 취할 수 있습니다. 

위치: 114동 L층
운영기간: 07:00~21:00
시설: 비치타월, 구명조끼, 암베드, 선베드
이용문의: 02-3408-5020     

 

| 사우나&피트니스

프라이빗한 공간의 다양한 탕을 즐길 수 있는 사우나

프라이빗한 내부 공간과 고급스러운 인테리어로 쾌적하고 깔끔한 사우나로 다양한 온도와 종류의 탕을 즐길 수 있어 시원하고 힐링할 수 있는 사우나였습니다. 개별 샤워시설과 파우더룸 그리고 사우나 후에 잠시 쉴 수 있는 안마의자가 있어 시원하게 마사지도 하고 휴식할 수 있는 공간입니다.  

위치: 114동 L층~B1층
운영시간: 07:00~21:00
서비스 용품: 샴푸, 컨디셔너, 바디워시, 페이스타월
이용문의: 02-3408-5020   

숲속에서 달리는 듯 피트니스

내부의 자연채광이 가득한 피트니스는 북한산의 풍경을 보면 마치 북한산에서 운동을 하는 듯한 느낌을 주는 쾌적한 공간으로 유산소 운동과 웨이트 기구를 보유하고 있으며 한분 한분 회원들을 위한 퍼스널 트레이닝을 제공하고 있습니다. 개인 맞춤형의 운동을 통해 활력을 충전할 수 있습니다. 

위치: 114동3층
운영시간: 07:00~21:00
서비스 용품: 운동복 상/하의, 양말, 머리끈, 생수, 타월 
이용문의: 02-3408-502

| 오너스 라운즈

스낵과 커피, 와인으로 한숨 쉬어가는 공간 그루지아

그루지아는 낮에는 내부에 들어와서 가족과 연인과 함께 담소를 나누면서 간단하게 커피와 함께 다과를 먹을 수있는 장소로 분위기가 있었습니다. 또한 와인을 즐길 수 있는 와인바로 운영되는 공간으로 아이와 동반 가능합니다. 

위치: 107동 G층
운영기간: 09:00~22:00
                 09:00~17:30_음료 및 스낵 무료 이용, 17:30~19:00_와인아워(아동 동반 가능), 19:30~20:00_정비시간
                 20:00~22:00_와인아워(아동 동반 금지, 14세 이상 입장 금지)
이용규정: 정회원 투숙 객실 정원 내 무료 (객실 인원 추가 비용 1인 22,000원)
비투숙 시 회원 외 동반인 유료 ( 1인 22,000원)

온가족이 하나되어 즐겁게 노래할 수 있는 공간 뮤직룸

프라나오너스 회원만을 위한 음악 콘텐츠 전문 상영 라운지 뮤직룸으로 오페라 클래식 등 공연 영상을 보고 듣는 경험도 할 수 있으며 가족과 함께 노래도 부르면서 화기애애한 분위기가 되는 넓고 쾌적한 공간입니다.

위치: 107동 G층
운영기간: 09:00~22:30
                가라오케 이용(사전예약제)
                 1부 16:00~17:00, 2부 17:30~18:30, 3부 19:30~20:00, 4부 20:30~21:30, 5부 22:00~23:00
시설: 싱잉홀 1실, 프라이빗 싱잉홀 2실
이용문의: 02-3408-5020     

 

| 키즈클럽

아이들의 상상속으로 피큐어 뮤지엄

다양한 피규어들이 전시되어있어 무한한 상상력을 펼칠 수 있는 공간으로 어린이들을 위한 놀이기구도 있어 가족과 함께 즐거운 시간을 보낼 수 있습니다. 

위치: 103동 G층
운영기간: 09:00~21:00
이용문의: 02-3408-5000   

 

어린이 영어 멤버심 클럽, 프로맘킨더

영어로 접근하여 즐거운 놀이 공간을 제공하여 아이들이 재미를 통해 영어를 익히고 행복하게 공간을 즐기면서 자연스럽게 배울 수있는 공간입니다.

위치: 102동 G층
운영기간: 10:30~19:00
이용문의: 02-998-1303  

 

톰소여 모험을 따라가는 트리하우스

동화책 톰소여에 나올듯한 나무위의 오두막인 트리하우스는 어린이들이 자유롭게 움직이면서 놀 수 있는 공간입니다.

위치: 109동 회원산책로
운영기간: 미

반응형